マンションフローレンス呉中通り
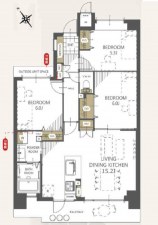
LDK15.2 洋6 洋6 洋5.3
♦2026年1月中旬リノベーション完了予定:(キッチン、浴室、洗面室、トイレ、防水パン、建具、フローリング、クロス、フロアタイル、ハウスクリーニング等)
呉駅から徒歩数分の好立地!
新規リノベーション物件でスッキリ気持ちの良いお部屋に♪ キッチンに勝手口があったり、浴室に窓があったりも嬉しいポイントで、キッチンすぐ裏に洗面室で家事同線も快適です。
また、宅配ボックスやオートロックもあり、セキュリティ面も安心。
徒歩圏内にスーパー、コンビニ、飲食店もあり、生活利便性も高い物件です。
※住宅ローンの借り入れ条件については、審査の結果によって異なります。
詳しくは店頭にてご相談ください。
※リフォーム金額は一例です。物件によって異なりますので、詳しくはお問い合わせください。
物件概要
- 所在地
- 呉市中通1丁目
- 価格
- 3,190 万円
- 交通
-
呉線 呉駅 まで 徒歩5分
- 専有面積
- 壁芯 70.24㎡
- バルコニー
- 間取り
- 所在階/階数
- 3階 / 14階
- 築年数
- 建ぺい率
- 容積率
- 土地権利
- 構造および階数
- RC(鉄筋コンクリート) 造 地上14階建
- 総戸数
- 52戸
- 小学校区
-
呉市立呉中央
(1300m /徒歩17分 ) - 中学校区
-
呉市立呉中央
(1300m /徒歩17分 ) - 地目
- 現況
- 空
- 引渡時期
- 相談
- 駐車場
- 有
- 駐車場月額
- 5,600〜10,000円/月
- 管理形態
- 全部委託
- 管理方式
- 管理人日勤
- 管理会社
- 章栄管理(株)
- 管理費
- 9,600円
- 修繕積立費
- 11,590円
- 上水道
- 下水道
- ガス
- 都市計画
- 用途地域
- 商業
- 設備・条件
- オートロック、エレベーター
- 備考
-
アフターサービス保証付(部位・設備別 最長10年)
水まわりトラブル365日対応
ホームステージング実施物件
自走式・機械式駐車場:月額5,600~10,000円(空き状況は管理会社要確認) - 取引態様
- 仲介
その他周辺物件
*40年ローン / 金利0.700%の場合
※審査により金利は変わる可能性があります。
詳しくは詳細ページをご覧ください。
この物件は175人の方が興味を持っています。


