新築一戸建て東広島市八本松飯田7丁目No.9
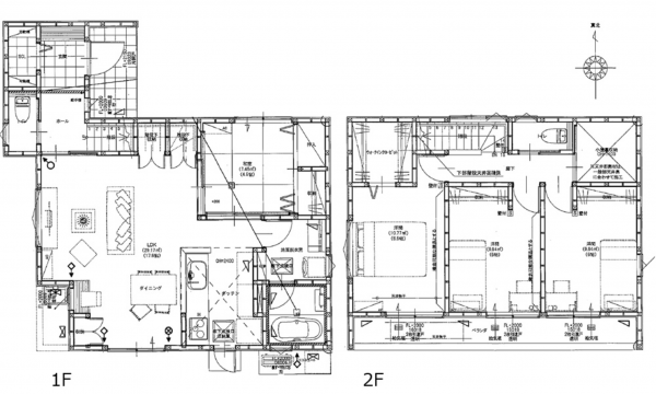
1F LDK17.6 和4.5 SIC
2F 洋6.5 洋6 洋6 WIC 小屋裏収納 トイレ
♦在来工法のオール電化住宅
♦フラット35S使用可能(但し期限内に限る)
支払例
※広島銀行/借入金3,400万円、返済期間40年、金利0.700%(変動金利)の場合
※審査により金利は変わる可能性があります。
物件概要
- 所在地
- 東広島市八本松飯田7丁目No.9
- 価格
- 3,400 万円
- 交通
-
バス停下条 まで 徒歩6分
- 土地面積
- 162.78㎡ (49.24坪)
- 建物面積
- 98.95㎡ (29.93坪)
- 間取り
- 4LDK
- 築年数
- 2025年 (令和7) 4月
- 建ぺい率
- 60%
- 容積率
- 200%
- 土地権利
- 構造および階数
- 木造 地上2階建
- 小学校区
- 川上
- 中学校区
- 磯松
- 私道負担
- 地目
- 現況
- 完成済
- 引渡時期
- 駐車場
- 2台
- 上水道
- 公共
- 下水道
- 公共
- ガス
- 都市計画
- 用途地域
- 1種住居
- 設備・条件
- カウンターキッチン、オール電化、駐車場2台分、トイレ2箇所、カップボード
- 備考
- ゴミステーション(持分1/9)
- 取引態様
- 仲介
その他周辺物件
*40年ローン / 金利0.700%の場合
※審査により金利は変わる可能性があります。
詳しくは詳細ページをご覧ください。
この物件は206人の方が興味を持っています。


