中古一戸建て呉市焼山東4丁目
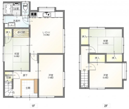
1F LDK10 洋7.5 和6
2F 洋6 和6
♦2015年リフォーム済:浴室、洗面化粧台
♦閑静な住宅街に佇む風通し・日あたりの良い住まい
♦中学校まで徒歩7分
・コープ焼山まで徒歩10分
・ファミリーマートまで徒歩9分
落ち着いた住環境が魅力の焼山東4丁目。陽当たり良好、心地よい日差しが差し込む明るい住まいです。
2015年に浴室・洗面をリフォーム済みで、清潔感のある水回り。
ゆったりとした間取りの4LDKで、ご家族みんなが快適に暮らせます。
コープ焼山やファミリーマートも徒歩圏内にあり、生活利便性も良好です。
※住宅ローンの借り入れ条件については、審査の結果によって異なります。
詳しくは店頭にてご相談ください。
※リフォーム金額は一例です。物件によって異なりますので、詳しくはお問い合わせください。
物件概要
- 所在地
- 呉市焼山東4丁目
- 価格
- 650 万円
- 交通
-
バス停二瀬川橋 まで 徒歩6分
- 土地面積
- 158.02㎡ (47.80坪)
- 建物面積
- 89.43㎡ (27.05坪)
- 間取り
- 4LDK
- 築年数
-
1980年
(昭和55)
11月
築45年 - 建ぺい率
- 50%
- 容積率
- 100%
- 土地権利
- 構造および階数
- 木造 2階建 造 地上2階建
- 小学校区
-
呉市立昭和中央
(1000m /徒歩13分 ) - 中学校区
-
呉市立昭和
(500m /徒歩7分 ) - 私道負担
- 地目
- 現況
- 空
- 引渡時期
- 相談
- 駐車場
- 上水道
- 公共
- 下水道
- 公共
- ガス
- プロパン個別
- 都市計画
- 用途地域
- 1種低層
- 設備・条件
- 備考
-
セットバック要
土砂災害警戒区域 - 取引態様
- 仲介
その他周辺物件
呉市****
呉市****
月々支払例:****円*
*40年ローン / 金利0.700%の場合
※審査により金利は変わる可能性があります。
詳しくは詳細ページをご覧ください。
*40年ローン / 金利0.700%の場合
※審査により金利は変わる可能性があります。
詳しくは詳細ページをご覧ください。
この物件は343人の方が興味を持っています。


