新築一戸建て呉市焼山東2丁目
♦制震ダンパー 耐震等級3の住宅性能評価
♦長期優良住宅
♦エネルギー消費性能星3つ
♦駐車3台可能!
♦無料点検実施(引渡後3ヶ月・2年・5年・10年)
♦NURO光(2ギガ)付住宅(月額料金要)
・生協ひろしまコープ焼山:徒歩9分
70坪を超えるゆとりある敷地は、お庭で子どもと遊んだりガーデニングを楽しんだりと、夢の広がる空間。新築戸建は耐震等級3を取得し、住宅性能評価や長期優良住宅にも認定された安心の住まいです。定期的な無料点検もあり、将来まで見据えて長く快適に暮らせます。徒歩3分のバス停からは通勤やお出かけもスムーズ、スーパーも徒歩9分と生活便利。広さと安心性能に恵まれた住まいで、家族の笑顔が自然と集まる新しい暮らしがはじまります。
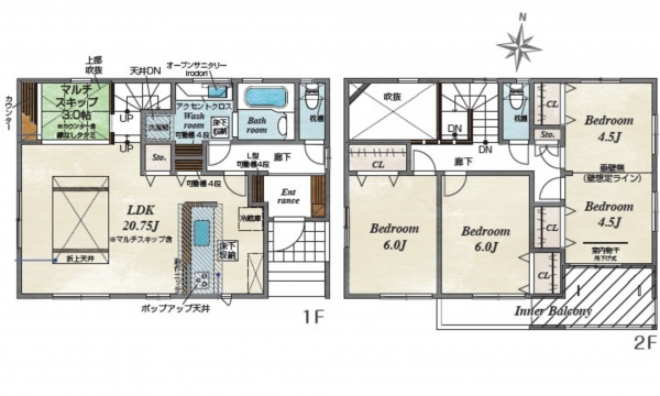
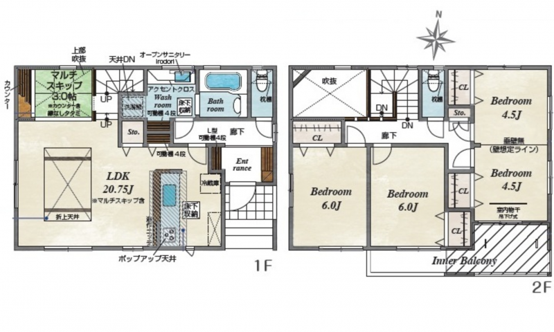
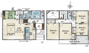
1F LDK20.75(マルチスキップ含む)
2F 洋9 洋6 洋6 トイレ
支払例
※広島銀行/借入金2,790万円、返済期間40年、金利0.700%(変動金利)の場合
※審査により金利は変わる可能性があります。
物件概要
- 所在地
- 呉市焼山東2丁目
- 価格
- 2,790 万円
- 交通
-
バス停第3団地中 まで 徒歩3分
- 土地面積
- 235.75㎡ (71.31坪)
- 建物面積
- 110.13㎡ (33.31坪)
- 間取り
- 3LDK
- 築年数
- 2025年 (令和7) 9月
- 建ぺい率
- 50%
- 容積率
- 100%
- 土地権利
- 構造および階数
- 地上2階建
- 小学校区
-
呉市立昭和中央
(1240m /徒歩16分 ) - 中学校区
-
呉市立昭和
(810m /徒歩11分 ) - 私道負担
- 地目
- 現況
- 完成済
- 引渡時期
- 相談
- 駐車場
- 3台
- 上水道
- 公共
- 下水道
- 公共
- ガス
- 都市計画
- 用途地域
- 1種低層
- 設備・条件
- 食器洗浄乾燥機、オール電化、浴室乾燥機、複層ガラス、駐車場3台分、トイレ2箇所、全居室収納
- 備考
-
表記建物面積にバルコニー約6.63㎡含む
網戸はオプション(全窓125,000円税込)
電子契約手数料5,000円税込(契約印紙不要)
子育てグリーン事務手数料99,385円
土砂災害警戒区域
- 取引態様
- 仲介
その他周辺物件
*40年ローン / 金利0.700%の場合
※審査により金利は変わる可能性があります。
詳しくは詳細ページをご覧ください。
この物件は186人の方が興味を持っています。


