中古一戸建て東広島市西条東北町
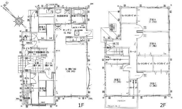
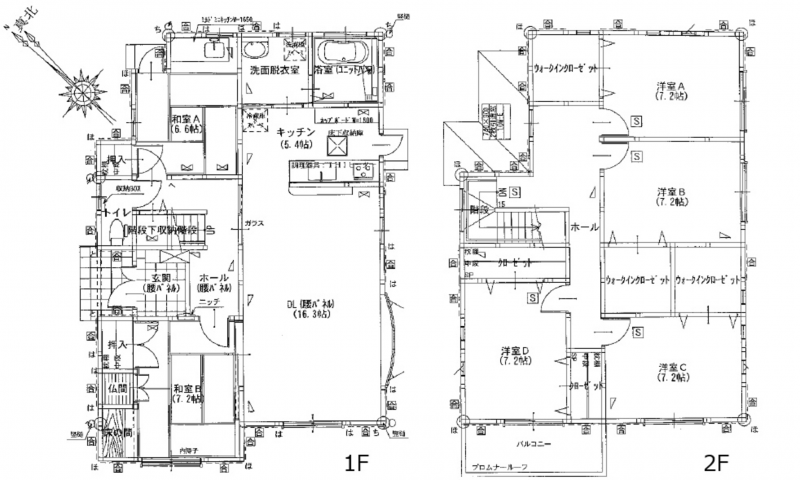
1F LDK21.7 和7.2 和6.2
2F 洋7.2 洋7.2 洋7.2 洋7.2 WIC2.2 WIC2.2 WIC2.2
♦小中学校まで徒歩10分
♦2013年3月 太陽光発電システム3.9kW設置
♦省エネ給湯器搭載のオール電化住宅
♦2024年新規取り換え:IHクッキングヒーター、食器洗浄乾燥機
♦2回にWIC×3でお部屋もスッキリ♪
※住宅ローンの借り入れ条件については、審査の結果によって異なります。
詳しくは店頭にてご相談ください。
※リフォーム金額は一例です。物件によって異なりますので、詳しくはお問い合わせください。
物件概要
- 所在地
- 東広島市西条東北町
- 価格
- 3,650 万円
- 交通
-
山陽本線 西条駅 まで 徒歩9分
- 土地面積
- 228.00㎡ (68.97坪)
- 建物面積
- 166.00㎡ (50.21坪)
- 間取り
- 6LDK
- 築年数
-
2007年
(平成19)
5月
築18年 - 建ぺい率
- 60%
- 容積率
- 200%
- 土地権利
- 構造および階数
- 木造 瓦葺 造 地上2階建
- 小学校区
-
龍王
(750m /徒歩10分 ) - 中学校区
-
西条
(800m /徒歩10分 ) - 私道負担
- 地目
- 現況
- 居住中
- 引渡時期
- 相談
- 駐車場
- 2台
- 上水道
- 公共
- 下水道
- 公共
- ガス
- 都市ガス
- 都市計画
- 用途地域
- 1種中高
- 設備・条件
- 食器洗浄乾燥機、IHクッキングヒーター、オール電化、駐車場2台分、省エネ給湯器、太陽光発電システム、浴室2020、洗濯乾燥機「乾太くんRDT-80」、タクボ物置1812
- 備考
- 取引態様
- 仲介
その他周辺物件
*40年ローン / 金利0.700%の場合
※審査により金利は変わる可能性があります。
詳しくは詳細ページをご覧ください。
この物件は179人の方が興味を持っています。


