新築一戸建て安芸郡熊野町東山№2
♦制震ダンパー装備 耐震等級3の住宅性能評価
♦オール電化の長期優良住宅
♦エネルギー消費性能星3つ
♦開放感ある折上天井のリビング♪
♦無料点検実施(引渡後3ヵ月・2年・5年・10年)
♦駐車3台可能!
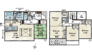
1F LDK16.25 洋和5.25 土間収納
2F 洋10.25 洋5.25 洋4.87 WIC トイレ
支払例
※広島銀行/借入金3,190万円、返済期間40年、金利0.700%(変動金利)の場合
※審査により金利は変わる可能性があります。
物件概要
- 所在地
- 安芸郡熊野町東山№2
- 価格
- 3,190 万円
- 交通
-
バス停団地西入口 まで 徒歩5分
- 土地面積
- 170.81㎡ (51.67坪)
- 建物面積
- 108.89㎡ (32.93坪)
- 間取り
- 4LDK
- 築年数
- 2025年 (令和7) 12月 完成予定
- 建ぺい率
- 60%
- 容積率
- 200%
- 土地権利
- 構造および階数
- 地上2階建
- 小学校区
- 熊野町立熊野第三
- 中学校区
- 熊野
- 私道負担
- 地目
- 現況
- 引渡時期
- 駐車場
- 3台
- 上水道
- 公共
- 下水道
- 公共
- ガス
- 都市計画
- 用途地域
- 1種中高
- 設備・条件
- カウンターキッチン、食器洗浄乾燥機、オール電化、浴室乾燥機、ウォークインクローゼット、駐車場3台分、トイレ2箇所、全居室収納、LED照明、土間収納、制震ダンパー
- 備考
-
別途セットバック及び私道持分有
表記建物面積にインナーバルコニー部分4.97㎡含む
網戸はオプション(全窓125,000円税込)
電子契約手数料5,000円税込(契約印紙不要)
子育てグリーン事務手数料99,385円 - 取引態様
- 仲介
その他周辺物件
*40年ローン / 金利0.700%の場合
※審査により金利は変わる可能性があります。
詳しくは詳細ページをご覧ください。
この物件は312人の方が興味を持っています。


