新築一戸建て東広島市西条町田口字小滝原№2
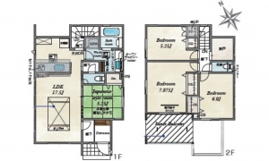
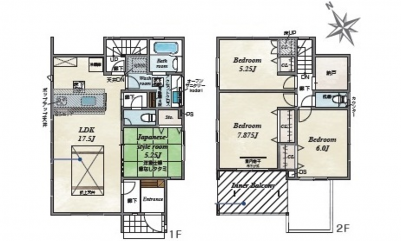
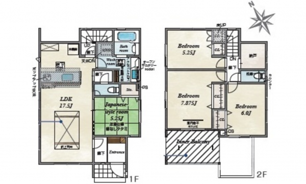
1F LDK17.5 和5.25
2F 洋7.875 洋6 洋5.25 納戸 トイレ
♦制震ダンパー、耐震等級3の住宅性能評価!
♦長期優良住宅でエネルギー消費性能星3つ
♦無料点検実施(引渡後3ヶ月・2年・5年・10年)
♦駐車3台可能!
・東広島西条東子店:徒歩8分
・ショージ田口店:徒歩10分
支払例
※広島銀行/借入金2,590万円、返済期間40年、金利0.700%(変動金利)の場合
※審査により金利は変わる可能性があります。
物件概要
- 所在地
- 東広島市西条町田口字小滝原№2
- 価格
- 2,590 万円
- 交通
-
バス停東子 まで 徒歩8分
- 土地面積
- 168.27㎡ (50.90坪)
- 建物面積
- 112.61㎡ (34.06坪)
- 間取り
- 4LDK
- 築年数
- 2026年 (令和8) 1月
- 建ぺい率
- 50%
- 容積率
- 100%
- 土地権利
- 構造および階数
- 地上2階建
- 小学校区
-
板城
(2280m /徒歩29分 ) - 中学校区
-
向陽
(1880m /徒歩24分 ) - 私道負担
- 地目
- 現況
- 完成済
- 引渡時期
- 駐車場
- 3台
- 上水道
- 公共
- 下水道
- 公共
- ガス
- 都市計画
- 用途地域
- 1種低層
- 設備・条件
- 食器洗浄乾燥機、オール電化、浴室乾燥機、複層ガラス、駐車場3台分
- 備考
-
網戸はオプション(全窓125,000円税込み)
電子契約手数料5,000円税込(契約印紙不要)
建物面積:バルコニー約8.28㎡含む - 取引態様
- 仲介
その他周辺物件
*40年ローン / 金利0.700%の場合
※審査により金利は変わる可能性があります。
詳しくは詳細ページをご覧ください。
この物件は282人の方が興味を持っています。


