中古一戸建て安芸郡熊野町石神
♦南東、南西向きのため日照良好
♦水回りの集中した家事動線に配慮のある間取り
♦室内は丁寧に使用されています
・業務スーパー熊野店まで徒歩11分
・石神公園まで徒歩1分
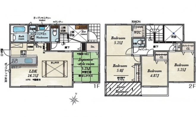
1F 洋 洋
2F LDK 約8和 約6和 トイレ
3F 約10洋 約6洋 約6洋 約6洋 約4WIC トイレ
※住宅ローンの借り入れ条件については、審査の結果によって異なります。
詳しくは店頭にてご相談ください。
※リフォーム金額は一例です。物件によって異なりますので、詳しくはお問い合わせください。
物件概要
- 所在地
- 安芸郡熊野町石神
- 価格
- 2,430 万円
- 交通
-
バス停境橋 まで 徒歩1分
- 土地面積
- 186.31㎡ (56.35坪)
- 建物面積
- 190.09㎡ (57.50坪)
- 間取り
- 8LDK
- 築年数
-
1994年
(平成6)
3月
築31年 - 建ぺい率
- 60%
- 容積率
- 200%
- 土地権利
- 構造および階数
- 木造 地上3階建
- 小学校区
-
熊野町立熊野第四
(1100m /徒歩14分 ) - 中学校区
-
熊野
(2300m /徒歩29分 ) - 私道負担
- 地目
- 現況
- 居住中
- 引渡時期
- 相談
- 駐車場
- 2台
- 上水道
- 下水道
- ガス
- 都市計画
- 用途地域
- 1種中高
- 設備・条件
- カウンターキッチン、駐車場2台分、トイレ2箇所
- 備考
- 取引態様
- 仲介
その他周辺物件
*40年ローン / 金利0.700%の場合
※審査により金利は変わる可能性があります。
詳しくは詳細ページをご覧ください。
この物件は264人の方が興味を持っています。


