新築一戸建て安芸郡熊野町中溝5丁目No.8
♦高気密・高断熱・高耐震
♦フラット35S対応
♦オシャレでメンテナンス不要な光セラサイディング
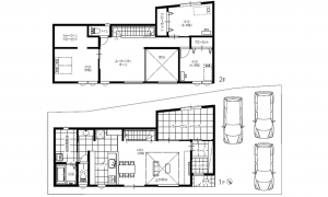
1F 18LDK ウォークスルートランク
2F 6洋 5.6洋 4.5洋 WIC ユーティリティ トイレ
支払例
※広島銀行/借入金3,430万円、返済期間40年、金利0.700%(変動金利)の場合
※審査により金利は変わる可能性があります。
物件概要
- 所在地
- 安芸郡熊野町中溝5丁目No.8
- 価格
- 3,430 万円
- 交通
-
バス停中溝 まで 徒歩11分
- 土地面積
- 146.90㎡ (44.43坪)
- 建物面積
- 121.30㎡ (36.69坪)
- 間取り
- 3SLDK
- 築年数
- 2025年 (令和7) 10月
- 建ぺい率
- 60%
- 容積率
- 200%
- 土地権利
- 構造および階数
- 地上2階建
- 小学校区
-
熊野町立熊野第一
(570m /徒歩8分 ) - 中学校区
-
熊野
(370m /徒歩5分 ) - 私道負担
- 地目
- 現況
- 完成済
- 引渡時期
- 相談
- 駐車場
- 3台
- 上水道
- 公共
- 下水道
- 公共
- ガス
- 都市計画
- 用途地域
- 1種住居
- 設備・条件
- ウォークインクローゼット、駐車場3台分、トイレ2箇所、太陽光発電(4.08kw)、全室断熱サッシ、ガルバリウム鋼板屋根、光セラサイディング、全室照明器具、リビングソファ、ダイニングテーブル、テレビ台、食器棚、全室カーテン、リビング収納、ウォークスルートランク、吹抜け、ユーティリティ
- 備考
- 水道負担金:別途要
- 取引態様
- 仲介
その他周辺物件
*40年ローン / 金利0.700%の場合
※審査により金利は変わる可能性があります。
詳しくは詳細ページをご覧ください。
この物件は1491人の方が興味を持っています。


