新築一戸建て東広島市八本松町原No.2
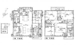
1F LDK18 和4.5 SIC 基礎内収納3
2F 洋8 洋6 洋6 WIC トイレ
♦タマホーム施工
♦エコキュート採用のオール電化住宅
♦スキップフロア、吹抜けで開放感あるリビング
♦おしゃれなペニンシュラキッチン採用
♦耐震等級最高ランク3の高耐震住宅
物件概要
- 所在地
- 東広島市八本松町原No.2
- 価格
- **** 万円
- 交通
-
バス停馬場台 まで 徒歩1分
- 土地面積
- 178.32㎡ (53.94坪)
- 建物面積
- 116.31㎡ (35.18坪)
- 間取り
- 4LDK
- 築年数
- 2025年 (令和7) 4月
- 建ぺい率
- 60%
- 容積率
- 200%
- 土地権利
- 構造および階数
- 地上2階建
- 小学校区
- 原
- 中学校区
- 八本松
- 私道負担
- 地目
- 現況
- 完成済
- 引渡時期
- 駐車場
- 2台
- 上水道
- 公共
- 下水道
- 浄化槽個別
- ガス
- 都市計画
- 用途地域
- 市街化調整区域
- 設備・条件
- オール電化、駐車場2台分、エコキュート、トイレ2箇所、シューズインクローゼット、パントリ―、全居室収納、スキップフロア、吹抜け、ペニンシュラキッチン、カップボード
- 備考
- 取引態様
- 仲介
その他周辺物件
*40年ローン / 金利0.700%の場合
※審査により金利は変わる可能性があります。
詳しくは詳細ページをご覧ください。
この物件は144人の方が興味を持っています。


