新築一戸建て安芸郡海田町大立町
♦ZEH水準省エネ住宅
♦フラット35S(Aプラン)
♦ガス衣類乾燥機「乾太くん」
・万惣海田店:徒歩3分
・小中学校:徒歩7分圏内
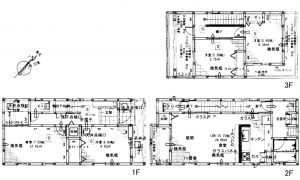
1F 7.5洋 6洋 WIC トイレ
2F 15.75LDK 浴室 洗面 トイレ
3F 5.46洋 5.28洋
支払例
※広島銀行/借入金4,280万円、返済期間35年、金利1.000%(変動金利)の場合
※審査により金利は変わる可能性があります。
物件概要
- 所在地
- 安芸郡海田町大立町
- 価格
- 4,280 万円
- 交通
-
山陽本線 海田市駅 まで 徒歩21分
- 接道状況
-
北側 公道5.9m
南西側5.6m - 土地面積
- 100.06㎡ (30.26坪)
- 建物面積
- 109.29㎡ (33.06坪)
- 間取り
- 4LDK
- 築年数
-
2025年
(令和7)
1月
築1年 - 建ぺい率
- 60%
- 容積率
- 200%
- 土地権利
- 構造および階数
- 地上3階建
- 小学校区
-
海田南
(520m /徒歩7分 ) - 中学校区
-
海田
(350m /徒歩5分 ) - 私道負担
- 地目
- 現況
- 空
- 引渡時期
- 相談
- 駐車場
- 2台
- 上水道
- 公共
- 下水道
- 公共
- ガス
- 都市ガス
- 都市計画
- 用途地域
- 1種住居
- 設備・条件
- カウンターキッチン、ウォークインクローゼット、駐車場2台分、トイレ2箇所、乾太くん
- 備考
- 別途水道負担金、瑕疵担保保険料20万円要する
- 取引態様
- 仲介
その他周辺物件
*35年ローン / 金利1.000%の場合
※審査により金利は変わる可能性があります。
詳しくは詳細ページをご覧ください。


