中古一戸建て安芸郡海田町三迫2丁目
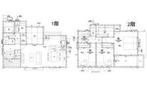
1F LDK 和 SIC
2F 洋 洋 洋 WIC トイレ
♦2016年築
♦主寝室にウォークインクローゼット
※住宅ローンの借り入れ条件については、審査の結果によって異なります。
詳しくは店頭にてご相談ください。
※リフォーム金額は一例です。物件によって異なりますので、詳しくはお問い合わせください。
物件概要
- 所在地
- 安芸郡海田町三迫2丁目
- 価格
- 2,300 万円
- 交通
-
山陽本線 海田市駅 まで 徒歩38分
バス停西自治会館 まで 徒歩5分
- 土地面積
- 159.66㎡ (48.29坪)
- 建物面積
- 105.58㎡ (31.93坪)
- 間取り
- 4LDK
- 築年数
-
2016年
(平成28)
8月
築9年 - 建ぺい率
- 60%
- 容積率
- 200%
- 土地権利
- 構造および階数
- 木造 地上2階建
- 小学校区
-
海田南
(1080m /徒歩14分 ) - 中学校区
-
海田
(1460m /徒歩19分 ) - 私道負担
- 地目
- 現況
- 空
- 引渡時期
- 相談
- 駐車場
- 2台
- 上水道
- 公共
- 下水道
- 公共
- ガス
- 都市計画
- 用途地域
- 1種中高
- 設備・条件
- システムキッチン、カウンターキッチン、食器洗浄乾燥機、IHクッキングヒーター、シャンプードレッサー、洗浄便座、浴室乾燥機、追い焚き、ウォークインクローゼット、モニタ付インターホン、駐車場2台分、床下収納、エコキュート、トイレ2箇所、シューズインクローゼット、パントリー、全居室収納、2WAYキッチン、グリル、ダブルロックドア、ダウンライト
- 備考
- 土砂災害警戒区域
- 取引態様
- 仲介
その他周辺物件
*40年ローン / 金利0.700%の場合
※審査により金利は変わる可能性があります。
詳しくは詳細ページをご覧ください。
この物件は6人の方が興味を持っています。


